Продается дом, 484 кв.м, с участком 11 соток, ID 18887

Коттеджный поселок «Молоденово»
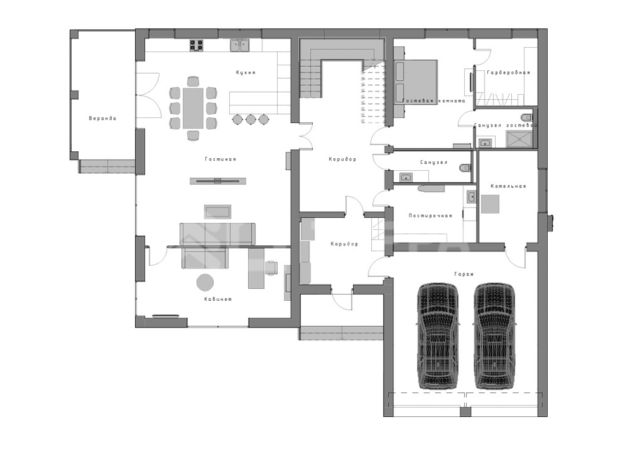
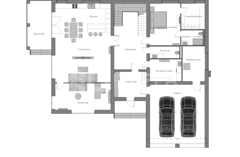
  • прихожая с гардеробом
  • с/у гостевой
  • холл
  • кухня-столовая-гостиная с выходом на террасу
  • кабинет
  • гостевая спальня с с/у и гардеробной
  • постирочная
  • котельная
  • гараж на 2 м/м
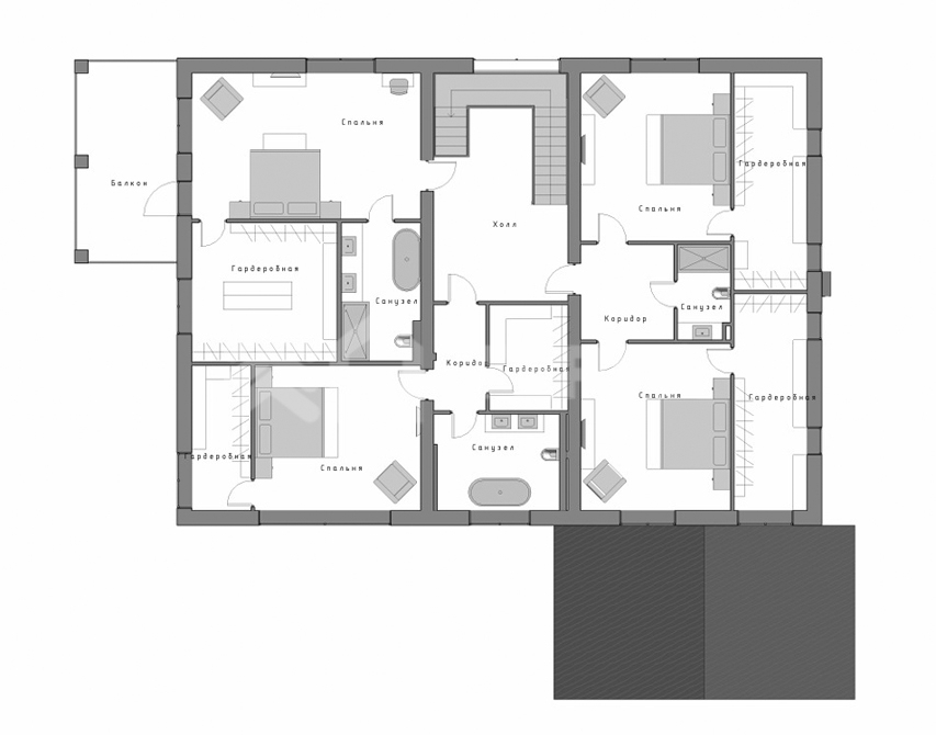
  • мастер-спальня с ванной комнатой гардеробной и выходом на балкон
  • детский блок: 2 спальни со своими гардеробными и общим с/у, спальня с 2-мя гардеробными и с/у
Участок и коммуникации
Поселок
Удаленность от МКАД
22 км
Площадь участка
11 соток
Деревья
Отсутствуют
Ландшафтные работы
Средние
Водопровод
Скважина
Газ
Есть

Описание места

135 074 000
Участок
11 соток
Площадь дома
484 м2 (Под ключ)
Материал
Кирпич
Спальни
5 шт.
Санузел
6 шт.
Гараж
на 2 автомобиля
Водопровод
Скважина
Газ
Есть
Деревья
Отсутствуют
Более подробную информацию можно узнать по телефону
+7 (495) 788 77 88
Похожие предложения
68 444 200 ₽
ID 2752
Дом
Поселок: Лесной Простор-3
21 км от МКАД, Рублево-Успенское
Участок
17 соток
Площадь
410 м2
Спальни
3 Шт.
По запросу
ID 5058
Участок
34 соток
Площадь
600 м2
Спальни
4 Шт.
100 000 000 ₽
ID 5326
Дом
Поселок: Пруды НП
17 км от МКАД, Рублево-Успенское
Участок
15 соток
Площадь
340 м2
Спальни
3 Шт.
$ 2 260 000
ID 5560
Дом
Поселок: Надежда ДНТ
28 км от МКАД, Рублево-Успенское
Участок
44 соток
Площадь
800 м2
Спальни
3 Шт.
$ 3 600 000
ID 6288
Дом
Поселок: Шульгино
7 км от МКАД, Рублево-Успенское
Участок
24 соток
Площадь
1207 м2
Спальни
5 Шт.
$ 2 200 000
ID 6332
Дом
Поселок: Подушкино ТСЖ
8 км от МКАД, Рублево-Успенское
Участок
13 соток
Площадь
800 м2
Спальни
4 Шт.
лимит символов – 500
Раздел
Тип сделки
лимит символов – 500