Продается дом, 268 кв.м, с участком 10 соток, ID 18344

Коттеджный поселок «Маслово Forest Club»
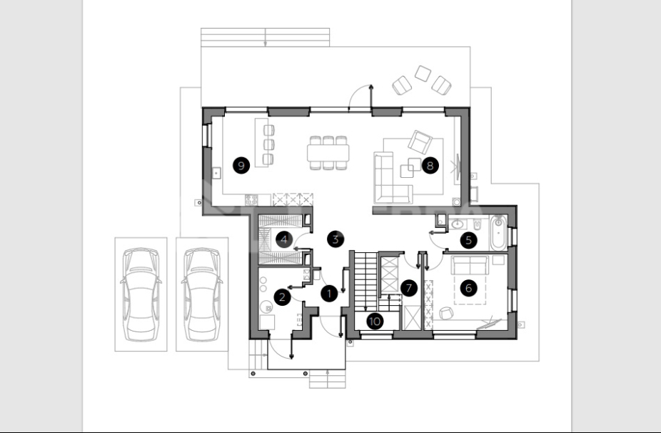
  • прихожая
  • холл
  • гардеробная
  • с/у
  • гостиная
  • кухня-столовая
  • кабинет/спальня
  • кладовая
  • котельная
  • терраса
  • 2 спальни со своими с/у и гардеробными
  • спальня
  • с/у
  • гардеробная
Описание

Предложение на вторичном рынке в одном из самых востребованных поселков на рублево-Успенском шоссе - Маслово Forest Club.
Дом монолитно-кирпичный из керамического блока Porotherm, толщина блока 44 см. Фасад облицован кирпичом ручной формовки из натуральной керамики. Окна алюминиевые ALUTECH. Дом расположен в готовой и полностью проданной очереди, в первой линии у леса. Продуманная и функциональная планировка. В гостиной панорамные окна с выходом на собственную террасу. Предусмотрена возможность установки камина в зоне кухни-столовой-гостиной. Возле дома место для 2 а/м.
Посёлок в окружении вековых сосен. Непосредственно к посёлку примыкает благоустроенная лесопарковая зона с сетью лесных дорожек, спортивными площадками, гамаками и качелями, площадками для детей и воркаут. В лесопарке красивое современное освещение и декаративная подсветка.

Участок и коммуникации
Удаленность от МКАД
28 км
Площадь участка
10 соток
Деревья
Отсутствуют
Гараж
Отсутствует
Ландшафтные работы
Отсутствуют
Водопровод
Централизовано
Канализация
Централизовано
Газ
Есть

Описание места

71 000 000
Участок
10 соток
Площадь дома
268 м2 (Под отделку)
Материал
Кирпич
Спальни
4 шт.
Санузел
3 шт.
Гараж
Отсутствует
Водопровод
Централизовано
Канализация
Централизовано
Газ
Есть
Деревья
Отсутствуют
Более подробную информацию можно узнать по телефону
+7 (495) 788 77 88
Похожие предложения
66 736 000 ₽
ID 17843
Дом
Поселок: Маслово Forest Club
28 км от МКАД, Рублево-Успенское
Участок
12 соток
Площадь
290 м2
Спальни
4 Шт.
58 687 000 ₽
ID 17848
Дом
Поселок: Маслово Forest Club
28 км от МКАД, Рублево-Успенское
Участок
11 соток
Площадь
290 м2
Спальни
4 Шт.
56 333 220 ₽
ID 17851
Дом
Поселок: Маслово Forest Club
28 км от МКАД, Рублево-Успенское
Участок
11 соток
Площадь
284 м2
Спальни
4 Шт.
70 798 000 ₽
ID 18107
Дом
Поселок: Маслово Forest Club
28 км от МКАД, Рублево-Успенское
Участок
11 соток
Площадь
290 м2
Спальни
4 Шт.
59 613 000 ₽
ID 18108
Дом
Поселок: Маслово Forest Club
28 км от МКАД, Рублево-Успенское
Участок
11 соток
Площадь
284 м2
Спальни
4 Шт.
69 158 000 ₽
ID 18109
Дом
Поселок: Маслово Forest Club
28 км от МКАД, Рублево-Успенское
Участок
12 соток
Площадь
290 м2
Спальни
4 Шт.
лимит символов – 500
Раздел
Тип сделки
лимит символов – 500