Элитная недвижимость в Москве. Продажа и аренда - страница: 10
Фильтр по параметрам
Найдено 359 объектов
ЦАО шоссе
BOGENHOUSE — клубный дом в исторической части района Замоскворечье, рассчитанный всего на 43 апартамента, из которых 3 - пентхаусы, занимающие последний этаж. Дом построен на набережной, первой линии у воды, из окон открывается завораживающий вид на Москву-реку и историческую застройку района. Клубный формат дома — всего 43 апартамента, включая 3 пентхауса. Лобби в стиле натурального...
370 000 000 ₽
ID 18861
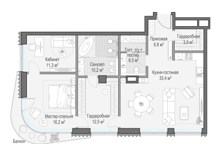
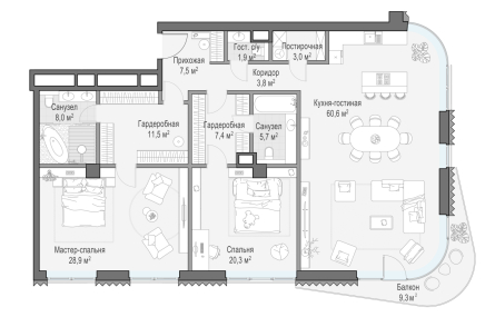
Квартира
Место: Bogenhouse Клубный дом
ЦАО Озерковская набережная, 6
Площадь
261 м2
Спальни
4 шт.
ЦАО шоссе
ЖК Balchug Viewpoint расположен в самом сердце Москвы. Пешая доступность к Третьяковской галерее, парку «Зарядье», Музеону и живописным набережным и каналам Москвы-реки. В районе находится множество музеев и культурных учреждений, а для семей с детьми создана развитая образовательная инфраструктура:
• 14 детских садов,
• 10 корпусов школ, включая престижный многопрофильный лицей №1799,...
215 000 000 ₽
ID 18881
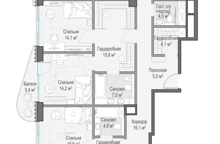
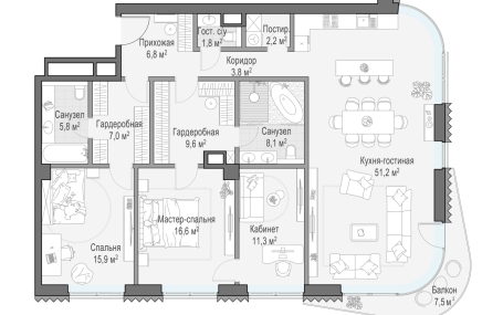
Квартира
Место: Balchug Viewpoint (Балчуг Вью Поинт)
ЦАО Садовническая наб.
Площадь
160 м2





